千葉県長生郡長柄町 |  貸倉庫・貸工場|ファクトリンク 
物件番号:100640

  • 賃料
    25.3万円
  • 共益費/管理費
    0円
  • 占有面積
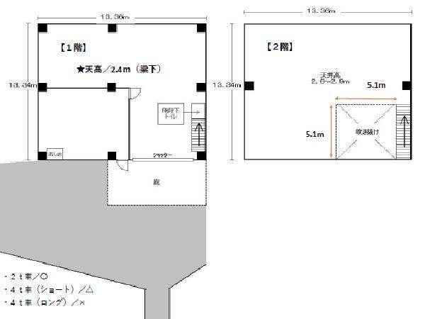
    334.77m²
  • 坪単価
    2,498円
住所 千葉県長生郡長柄町刑部861 
敷金 / 保証金 / 3ヶ月
礼金 1ヶ月
築年月 199111
交通 徒歩29分
バス(-)
取引態様 一般
※物件掲載内容と現況に相違がある場合は現況を優先と致します。

お問い合わせはこちらからお寄せください

お電話でのお問い合わせ
物件番号:100640
営業時間08:30 〜 20:00
定休日年中無休
WEBからのご予約・お問い合わせ
※こちらの物件は不動産会社様にはご紹介できません

    必須 は入力必須項目です。
    • ご登録のお電話やメールアドレスに情報をお送りいたしますので、正しくご入力下さい。
    • 弊社の個人情報保護方針についてをご覧ください。
    お問い合わせ内容必須
    会社名
    お名前必須
    フリガナ
    連絡方法
    電話番号必須
    メールアドレス必須