- 賃料
- 198万円
- 共益費/管理費
- 0円
- 占有面積
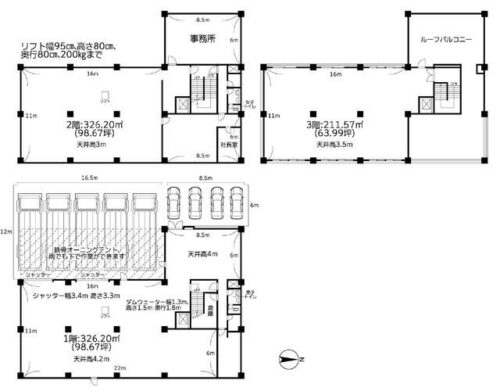
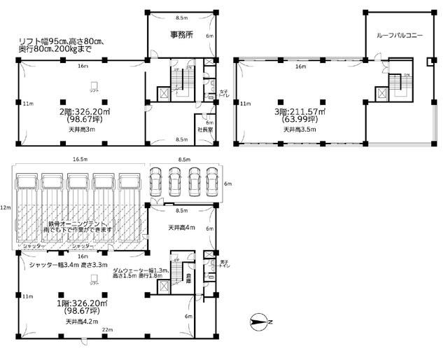
- 863.97m²
- 坪単価
- 7,576円
| 住所 | 神奈川県横浜市瀬谷区卸本町9308-23 卸本町倉庫 |
|---|---|
| 敷金 / 保証金 | / 3ヶ月 |
| 礼金 | 1ヶ月 |
| 築年月 | 1974/07 |
| 交通 | 東急田園都市線 南町田グランベリーパーク駅 徒歩32分 バス(-) |
| 取引態様 | 媒介 |
※物件掲載内容と現況に相違がある場合は現況を優先と致します。
お問い合わせはこちらからお寄せください
WEBからのご予約・お問い合わせ
















