- 賃料
- 187万円
- 共益費/管理費
- 0円
- 占有面積
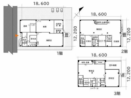
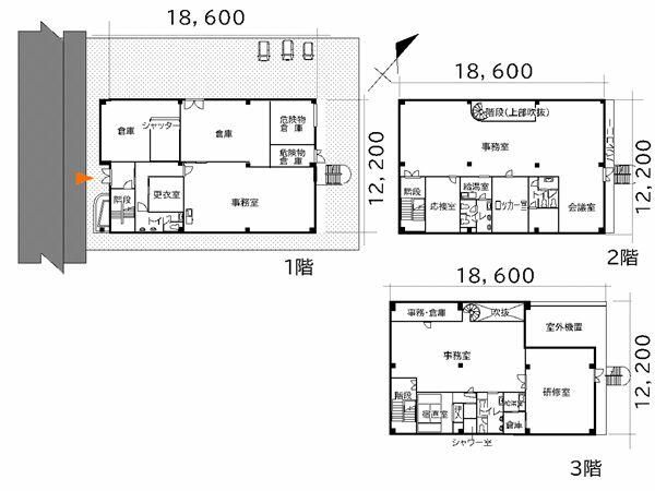
- 634.1m²
- 坪単価
- 9,748円
| 住所 | 東京都国分寺市光町1丁目29-10 国分寺市光町1丁目貸倉庫 |
|---|---|
| 敷金 / 保証金 | / 4ヶ月 |
| 礼金 | 1ヶ月 |
| 築年月 | 1994/03 |
| 交通 | JR中央線 国立駅 徒歩9分 バス(-) |
| 取引態様 | 媒介 |
※物件掲載内容と現況に相違がある場合は現況を優先と致します。
お問い合わせはこちらからお寄せください
WEBからのご予約・お問い合わせ
「貸倉庫」「貸工場」物件を探すなら
| 住所 | 東京都国分寺市光町1丁目29-10 国分寺市光町1丁目貸倉庫 |
|---|---|
| 敷金 / 保証金 | / 4ヶ月 |
| 礼金 | 1ヶ月 |
| 築年月 | 1994/03 |
| 交通 | JR中央線 国立駅 徒歩9分 バス(-) |
| 取引態様 | 媒介 |