- 賃料
- 110万円
- 共益費/管理費
- 0円
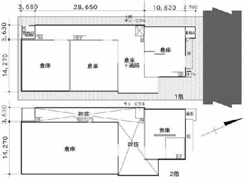
- 占有面積
- 1296.51m²
- 坪単価
- 2,804円
| 住所 | 埼玉県さいたま市岩槻区大字釣上1337-1 さいたま市岩槻区大字釣上1337 貸倉庫 |
|---|---|
| 敷金 / 保証金 | / 4ヶ月 |
| 礼金 | 2ヶ月 |
| 築年月 | 1989/01 |
| 交通 | 埼玉高速鉄道 浦和美園駅 徒歩23分 バス(-) |
| 取引態様 | 媒介 |
※物件掲載内容と現況に相違がある場合は現況を優先と致します。
お問い合わせはこちらからお寄せください
WEBからのご予約・お問い合わせ










