埼玉県川越市 | - 貸倉庫・貸工場|ファクトリンク 
物件番号:102753

  • 賃料
    22万円
  • 共益費/管理費
    0円
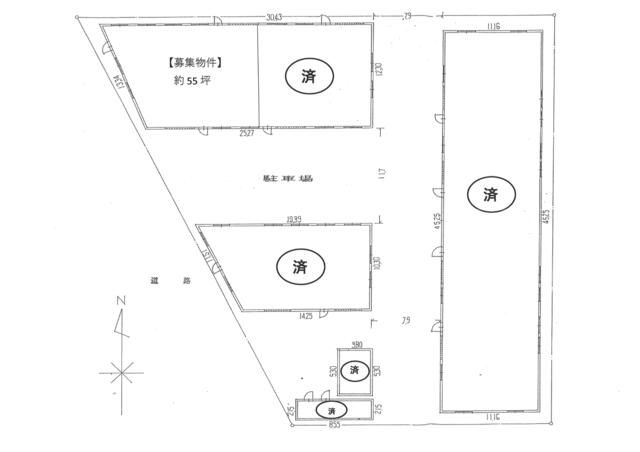
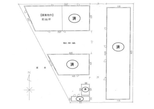
  • 占有面積
    182m²
  • 坪単価
    3,996円
住所 埼玉県川越市大字南田島757-1 -
敷金 4ヶ月
礼金 2ヶ月
築年月 1982/01
交通 JR川越線 南古谷駅 徒歩17分
バス(-)
取引態様 媒介
※物件掲載内容と現況に相違がある場合は現況を優先と致します。

お問い合わせはこちらからお寄せください

お電話でのお問い合わせ
物件番号:102753
営業時間08:30 〜 20:00
定休日年中無休
WEBからのご予約・お問い合わせ
※こちらの物件は不動産会社様にはご紹介できません

関連おすすめ物件

  • new
    川越市大字石田貸倉庫 貸倉庫・貸工場|ファクトリンク川越市大字石田貸倉庫 貸倉庫・貸工場|ファクトリンク
    20万円
    川越市大字石田91-2
    東武東上線川越駅
  • 藤倉46坪貸し倉庫 46.3坪 貸倉庫・貸工場|ファクトリンク藤倉46坪貸し倉庫 46.3坪 貸倉庫・貸工場|ファクトリンク
    33万円
    川越市藤倉2丁目12-19
    西武新宿線新狭山駅
  • 川越市大字府川145-3貸作業所 45.4坪 貸倉庫・貸工場|ファクトリンク川越市大字府川145-3貸作業所 45.4坪 貸倉庫・貸工場|ファクトリンク
    30万円
    川越市大字府川145-3
    東武東上線川越駅
  •  貸倉庫・貸工場|ファクトリンク 貸倉庫・貸工場|ファクトリンク
    36.3万円
    川越市大字笠幡156-90
    JR川越線笠幡駅
  • 宮根倉庫 貸倉庫・貸工場|ファクトリンク宮根倉庫 貸倉庫・貸工場|ファクトリンク
    27.5万円
    川越市大字小堤624-7
    東武東上線鶴ヶ島駅
  • 寺井作業所 貸倉庫・貸工場|ファクトリンク寺井作業所 貸倉庫・貸工場|ファクトリンク
    22万円
    川越市大字寺井
    西武新宿線本川越駅

    必須 は入力必須項目です。
    • ご登録のお電話やメールアドレスに情報をお送りいたしますので、正しくご入力下さい。
    • 弊社の個人情報保護方針についてをご覧ください。
    お問い合わせ内容必須
    会社名
    お名前必須
    フリガナ
    連絡方法
    電話番号必須
    メールアドレス必須