神奈川県相模原市中央区 | 田名櫻山倉庫 貸倉庫・貸工場|ファクトリンク
new
 
物件番号:102535

  • 賃料
    29.7万円
  • 共益費/管理費
    0円
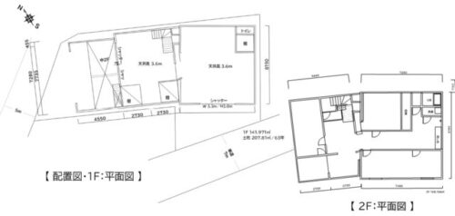
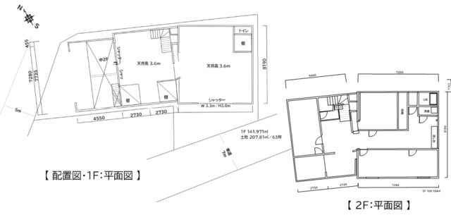
  • 占有面積
    250.15m²
  • 坪単価
    3,924円
住所 神奈川県相模原市中央区田名2463-4 田名櫻山倉庫
敷金 3ヶ月
礼金 1ヶ月
築年月 1980/07
交通 JR相模線 南橋本駅 徒歩37分
バス(-)
取引態様 媒介
※物件掲載内容と現況に相違がある場合は現況を優先と致します。

お問い合わせはこちらからお寄せください

お電話でのお問い合わせ
物件番号:102535
営業時間08:30 〜 20:00
定休日年中無休
WEBからのご予約・お問い合わせ
※こちらの物件は不動産会社様にはご紹介できません

関連おすすめ物件

  • 田名櫻山倉庫 貸倉庫・貸工場|ファクトリンク田名櫻山倉庫 貸倉庫・貸工場|ファクトリンク
    29.7万円
    相模原市中央区田名2463-4
    JR相模線南橋本駅
  • 由野台 貸倉庫・貸工場|ファクトリンク由野台 貸倉庫・貸工場|ファクトリンク
    22万円
    相模原市中央区由野台1丁目4-8
    JR横浜線淵野辺駅
  • アステラス 貸倉庫・貸工場|ファクトリンクアステラス 貸倉庫・貸工場|ファクトリンク
    59.4万円
    相模原市中央区東淵野辺5丁目15-20
    JR横浜線古淵駅
  • - 貸倉庫・貸工場|ファクトリンク- 貸倉庫・貸工場|ファクトリンク
    50万円
    相模原市中央区田名8552-4
    JR横浜線橋本駅
  • 上溝K倉庫 A棟・B棟 貸倉庫・貸工場|ファクトリンク上溝K倉庫 A棟・B棟 貸倉庫・貸工場|ファクトリンク
    42万円
    相模原市中央区上溝4004-1
    JR相模線上溝駅
  • 田名5号F棟 貸倉庫・貸工場|ファクトリンク田名5号F棟 貸倉庫・貸工場|ファクトリンク
    27.25万円
    相模原市中央区田名2285-1
    JR横浜線橋本駅

    必須 は入力必須項目です。
    • ご登録のお電話やメールアドレスに情報をお送りいたしますので、正しくご入力下さい。
    • 弊社の個人情報保護方針についてをご覧ください。
    お問い合わせ内容必須
    会社名
    お名前必須
    フリガナ
    連絡方法
    電話番号必須
    メールアドレス必須